Circa 1963 - Birdy was purchased and commissioned as Bus #2 of the fleet of Bluebird Body school buses serving the IKM Manning Community School District around Irwin, Iowa. Typical of school buses, after about 7 years of service, she was retired from the fleet around 1970.

Although it is not known exactly when, Birdy was purchased by Stover Hatchery, originally a small poultry farm owned by a family named Custer, in the early 1970’s.

Birdy began her service to the local community delivering chicken and eggs to local businesses, restaurants, farmers and residents in the town of Stover, Missouri, and its surrounding rural areas, occasionally traveling as far as Loose Creek, Missouri, and even into Arkansas.

Sometime around 1977 or 1978 it is presumed that either the business model, mechanical issues, or both, resulted in Birdy being annexed to the hatchery under a shed roof. Stover Hatchery had grown and was expanding their operation.

In her new parked location, it is rumored that her interior may have served as a small incubation space for eggs.

The Phillips Family purchased the business in 1983, and the hatchery is still run by Jeremy Phillips of Stover, Missouri. They sell day old Cornish Chicks and Cornish Hatching eggs to educational programs, nationally.

In February of 2018, Birdy was purchased and driven to Lawrence Kansas. According to registration paper work from Stover, Missouri, her last year of official road service was 1977.

At 55 years of age, it is assumed her engine had not been started for almost 40 years.

At the University of Kansas, as part of the CiRCA initiative, Birdy underwent extensive restoration and conversion into her current form.

Her International Harvester 6 cylinder - BD264 gasoline engine was removed from its engine bay, and brought to Topeka, Kansas where the engine was restored by Master Machinist Tim Hulsopple and his assistant Brian Ames.

Rare replacement parts for her engine were sourced from a Lawrence local vintage vehicle enthusiast, Tom Underwood (Parts of the Past), and from Charlie Horton (Charlie’s IH in Chillicothe, Missouri).

While the engine was being restored, her International Harvester chassis was cleaned and rust stabilized.

With the last of the school bus yellow in the engine bay masked and repainted, Birdy’s rebuilt engine was brought back to Lawrence. Dan Rockhill, Nils Gore, (Univeristy of Kansas Architecture faculty) with Juniper Tangpuz (Kansas artist), were instrumental in getting Birdy’s engine reinstalled in her engine bay.

With further mechanical reinstallation help from Ben Brown and Ed Rockhold, on July 19, 2018, forty some years after sitting silent. Birdy took her first new breath.

As significant as a running engine, the ability to stop is just as important. All the rusted brake lines were removed and re-fabricated and the brake cylinders, hydrovac brake booster, replaced.

Clutch parts, cooling system, fuel tank and fuel system components, all needed to be inspected, restored and in many cases replaced. Local radiator specialist Brett Mullenix (B&D Radiator, McClouth, Kansas) refurbished both the radiator and fuel tank.

Parts for all of this work, and more importantly, guidance from a local network of older experienced automotive enthusiasts familiar with this era vehicle was essential.

Ed Rockhold, Keith Finlay, and Nate McFadden, (Napa Auto - Lawrence) supplied both their contacts and insights in abundance with care and wisdom. Richie Backus, Marcos Markoulatos, and Joe Patrick (Slimmer’s Automotive Service) were also generously helpful with their knowledge.

Mechanical Restoration

During the summer and winter months of 2018 and 2019, Tom Huang (University of Kansas Design Faculty), worked to design Birdy’s new interior and exterior. Special attention and effort would be made to preserve the legacy and history of her experience as a working school bus. But many new additions were to come.

Design & Conversion

Birdy’s Final Missouri Motor Vehicle Registration

Birdy’s Story

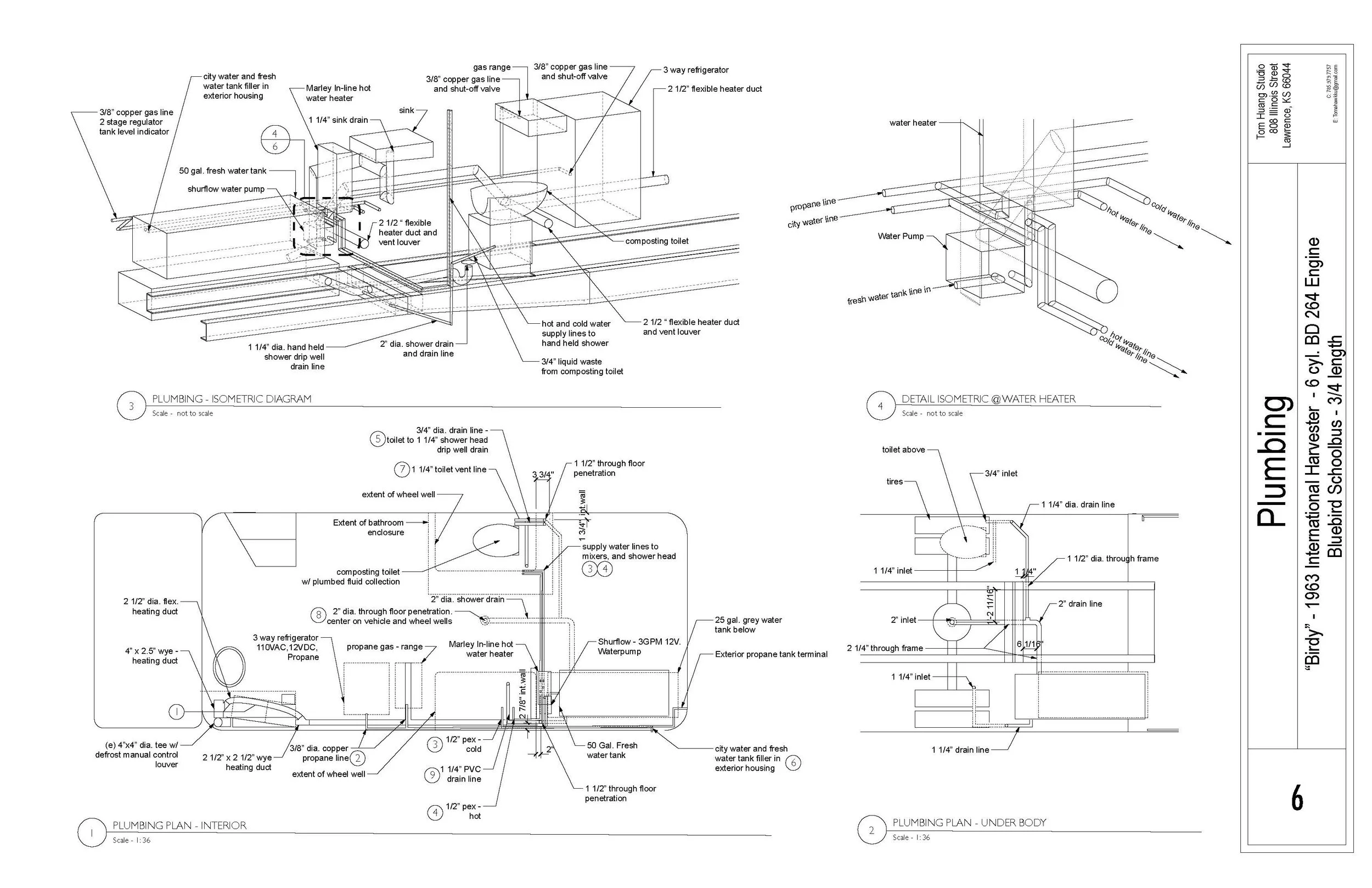
She would be outfitted with a 50 gallon fresh water tank, kitchen sink, microwave oven, propane range, and refrigerator. She would have substantial storage, Tiny Wood Stove, air conditioning, toilet, interior/exterior shower, and slide out couches. Her 450 amp. hour battery bank and 3000 watt inverter would be powered by roof mounted solar panels. She would have a custom fabricated roof rack and new back deck.

Her original dashboard and gauges have been restored to original working condition. Her original auxiliary instrument panel kept and refitted with switching to control new dimmable LED cove and ceiling lighting. Water pump switching, inverter switching, shore power diverter, battery bank level sensors and water level sensors are all accounted for in her new control center. She now has a back-up camera.

Her original driver seat was kept, re-upholstered, and mounted on a new swivel base. Her new shifter boots match her driver’s seat.

Her interior sheet metal was carefully stripped, except for her front panel which bears an original sticker that states, “Your childen’s safety is our business” and the original plate that rates her capacity to carry 36 passenger. She is now insulated and her ceiling is clad in bamboo slats. Her floor is decked in walnut.

A new First Aid cabinet is installed in what was previously unoccupied space behind her original sheet metal upon entry. An original embossed sheet metal panel that separated the entry step well from the passenger area is repurposed as the passenger seat back.

The vision for her future mission was to be able to immerse for up to two continuous weeks on site at a remote location without the need for power or water to conduct her educational and community development missions.

A slide out pantry provides ample storage, for more dry goods and kitchen needs. While a “green divider wall” of small planters provides fresh herbs while separating the kitchen area from the rear bedroom/ seating area.

At night, her light cove storage area doubles as accent lighting in the kitchen.

Her colorful coats of paint give “Birdy” her vibrant and outgoing persona. Many thanks to Kenny of Jarblo Junction for his guidance on automotive finishing.